详细介绍
无机特级防火卷帘门
|
适用于不设自动喷淋系统的场合,节能,节省投资 |
|
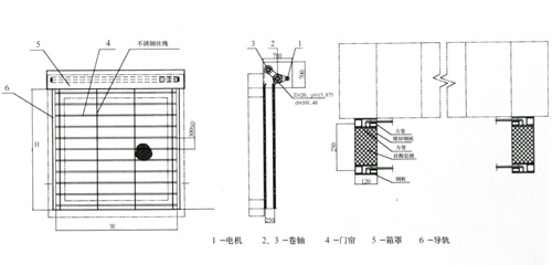
无机布防火卷帘门示意图
无机特级防火卷帘门实拍图 |

欢迎进入快速门厂家官网!

关键词:工业快速门 工业提升门 物流装卸货设备 冷库保温门
快速门系列产品Product
西朗门业(苏州)有限公司
总机:0512-66575355
手机:17798578460
传真:0512-66575311
邮箱:yyy@seppes.com.cn
地址:江苏省苏州市吴中区木渎镇走马塘路59号4幢